前几天VIP群的群友咨询弱电系统图和大样图以及弱电深化设计的技术资料。其实之前在弱电VIP群已经更新了弱电系统大样图。弱电设备大样图可以作为我们的施工图的一部分,也可以作为技术交底的一部分,所以说非常重要。
1、常用的弱电系统图及大样图










































































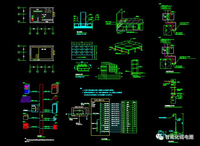
立杆大样图-1

立杆大样图-2

电池柜大样图

机房静电地板

机房玻璃隔断

机房接地铜

机柜大样图-1

机柜大样图-2

机柜大样图-3

机柜大样图-4

立杆安装

大屏安装

信息发布

视频监控摄像头安装

桥架安装

KBG管安装

室外防水箱

会议系统

指挥中心光路图

电视墙

技术保障桌子平、立面图

市级联动桌子

桌子示意图

领导桌子指挥里面图

桌子示意图

监控防雷接地

停车场管理

IBMS系统集成

门禁系统

静电地板施工

机房施工接地

机柜

电子巡更

停车场施工管理

线圈切割

安全岛














































































标签: 弱电
